Skip to Content

RAUM FÜR VISIONEN AUF MEHREREN EBENEN

Mit etwa 1’360 m² pro Geschoss bieten die Büros jede Menge Spielraum für individuelle Gestaltung. Das offene Layout sorgt für effiziente Wege und maximale Anpassungsfähigkeit. Der erweiterte Grundausbau mit Doppelboden, Kühlung und Lüftung über Deckensegel, sowie ausgebaute Sanitäranlagen bietet eine hervorragende Ausgangsbasis für Ihren individuellen Ausbau. Die Eigentümerschaft ist offen für flexible Lösungen und unterstützt Sie gerne dabei, den optimalen Ausbaustandard für Ihre Anforderungen zu finden.

FLÄCHENÜBERSICHT

GESCHOSS FLÄCHE STATUS GRUNDRISS
13. Obergeschoss 1’297 m² Verfügbar Download
12. Obergeschoss 1’393 m² Verfügbar Download
11. Obergeschoss 1’393 m² Verfügbar Download
10. Obergeschoss 1’393 m² Verfügbar Download
9. Obergeschoss 1’393 m² Verfügbar Download
8. Obergeschoss 1’393 m² Verfügbar Download
7. Obergeschoss 1’393 m² Verfügbar Download
6. Obergeschoss 1’393 m² Verfügbar Download
5. Obergeschoss 1’393 m² Verfügbar Download
4. Obergeschoss 1’393 m² Verfügbar Download
3. Obergeschoss 1’393 m² Verfügbar Download
2. Obergeschoss 1’393 m² Verfügbar Download
1. Obergeschoss 1’115 m² Verfügbar Download
Erdgeschoss 706 m² Verfügbar Download

MORE
TO THE PEOPLE
Flexibility
TO THE PEOPLE

Der stützenfreie Grundriss bietet maximale Gestaltungsfreiheit und ermöglicht bei Bedarf eine zweigeschossige Raumlösung. Für Arbeitswelten, die sich flexibel weiterentwickeln lassen.

MORE
TO THE PEOPLE
VISIBILITY
TO THE PEOPLE

Die markante Lage direkt am Verkehrsknotenpunkt Bahnhof Oerlikon sorgt für hohe Visibilität und eine starke Präsenz im urbanen Raum. Die exzellente Anbindung an öffentlichen Verkehr, Autobahn und Flughafen unterstreicht die nationale und internationale Erreichbarkeit. Als möglicher Single-Tenant-Tower bietet das Gebäude ideale Voraussetzungen für eine eigenständige und klar sichtbare Unternehmensidentität.

MORE
TO THE PEOPLE
EDUCATION
TO THE PEOPLE

Die zentrale Lage in Oerlikon sorgt für eine einfache Erreichbarkeit aus der ganzen Stadt und eine optimale Anbindung an den öffentlichen Verkehr. Flexible Flächen mit möglicher vertikaler Erschliessung ermöglichen vernetzte Lern- und Arbeitsumgebungen. Das vielfältige Angebot an Einkaufs- und Versorgungsmöglichkeiten im direkten Umfeld unterstützt den Alltag auf und rund um den Standort.

MÖGLICHE BÜROLAYOUTS

Das Erdgeschoss bietet den perfekten Raum für einen repräsentativen Empfang. Weiter sorgen Gastronomie und Retail-Angebote für diverse Amenities direkt im Gebäude.

Vielseitig nutzbare Meetingräume und einladende Social Spaces schaffen Raum für Austausch, Konferenzen und informelle Begegnungen in professioneller Atmosphäre. Die Wendeltreppe aus dem Erdgeschoss verbindet die Ebenen auf direktem Weg.

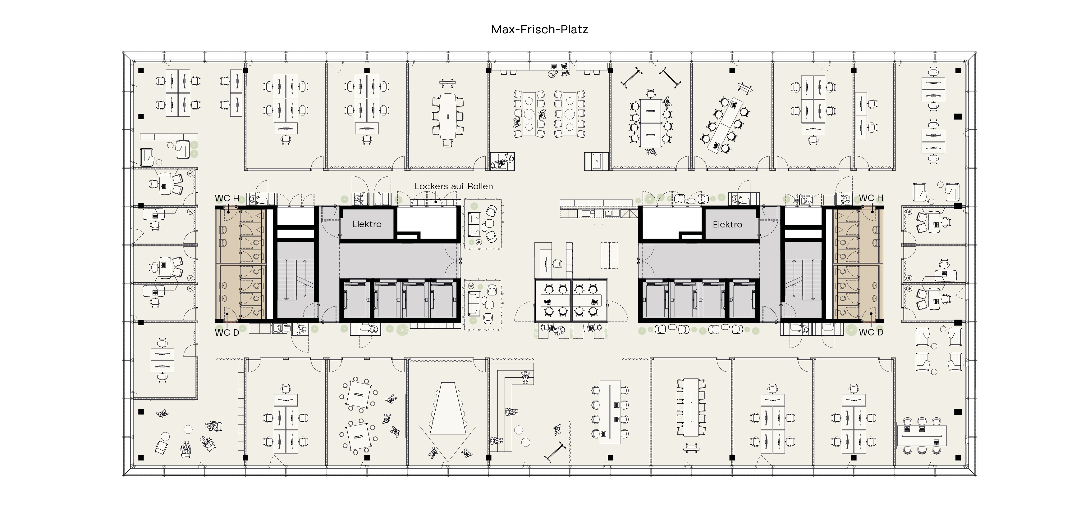
Die klassische Struktur kombiniert ruhige Arbeitsbereiche mit offenen Begegnungszonen. Einzel- und Teambüros ermöglichen konzentriertes Arbeiten, während Open-Space-Bereiche Raum für informellen Austausch bieten. Insgesamt entstehen 68 Arbeitsplätze in einer ausgewogenen Organisation.

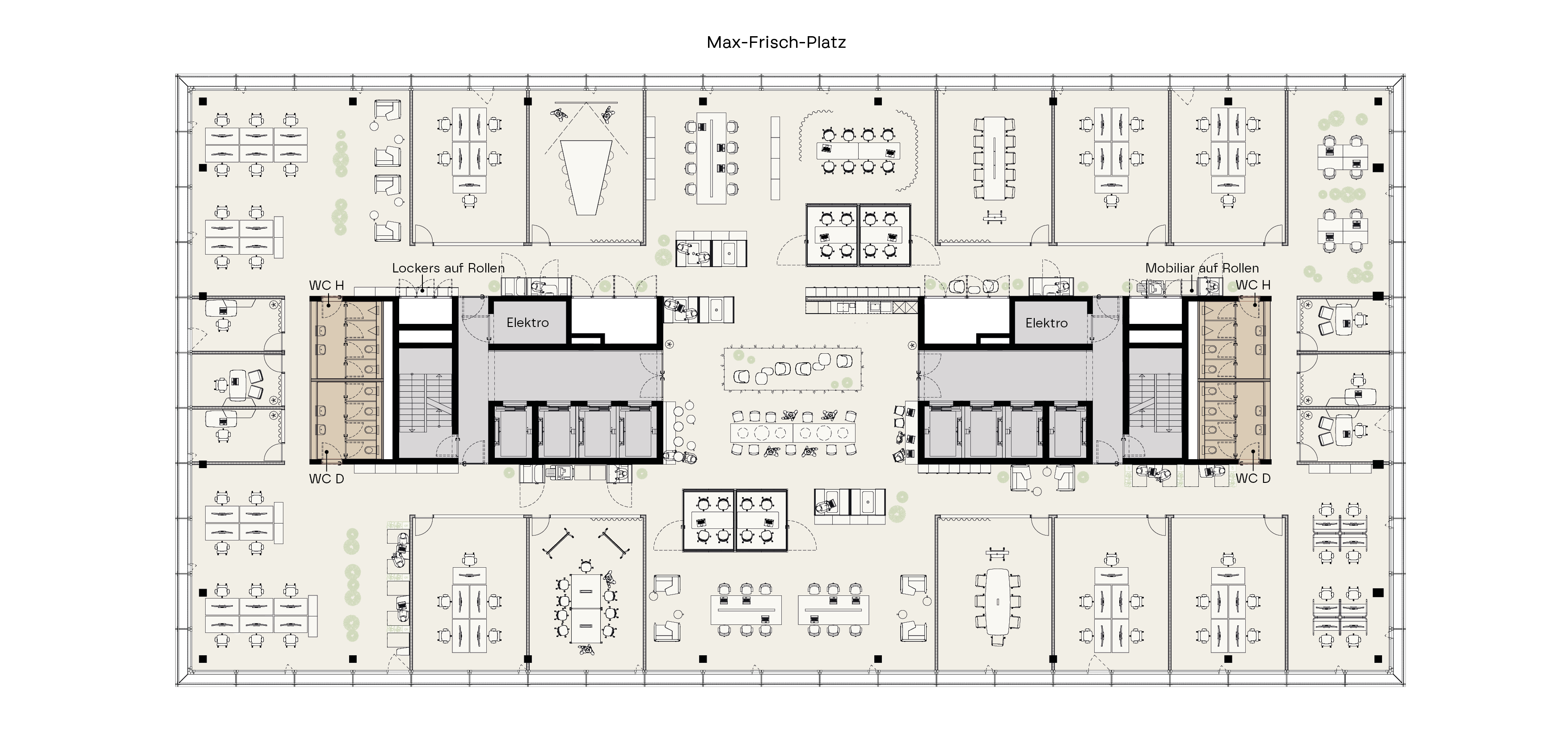
Die hybride Struktur richtet sich an dynamische Teams und projektorientierte Zusammenarbeit. Flexible Zonen für Austausch, Projektarbeit und kurze Abstimmungen prägen das Layout. Mit 102 Arbeitsplätzen entsteht eine vielseitige Arbeitsumgebung für unterschiedliche Arbeitsformen.

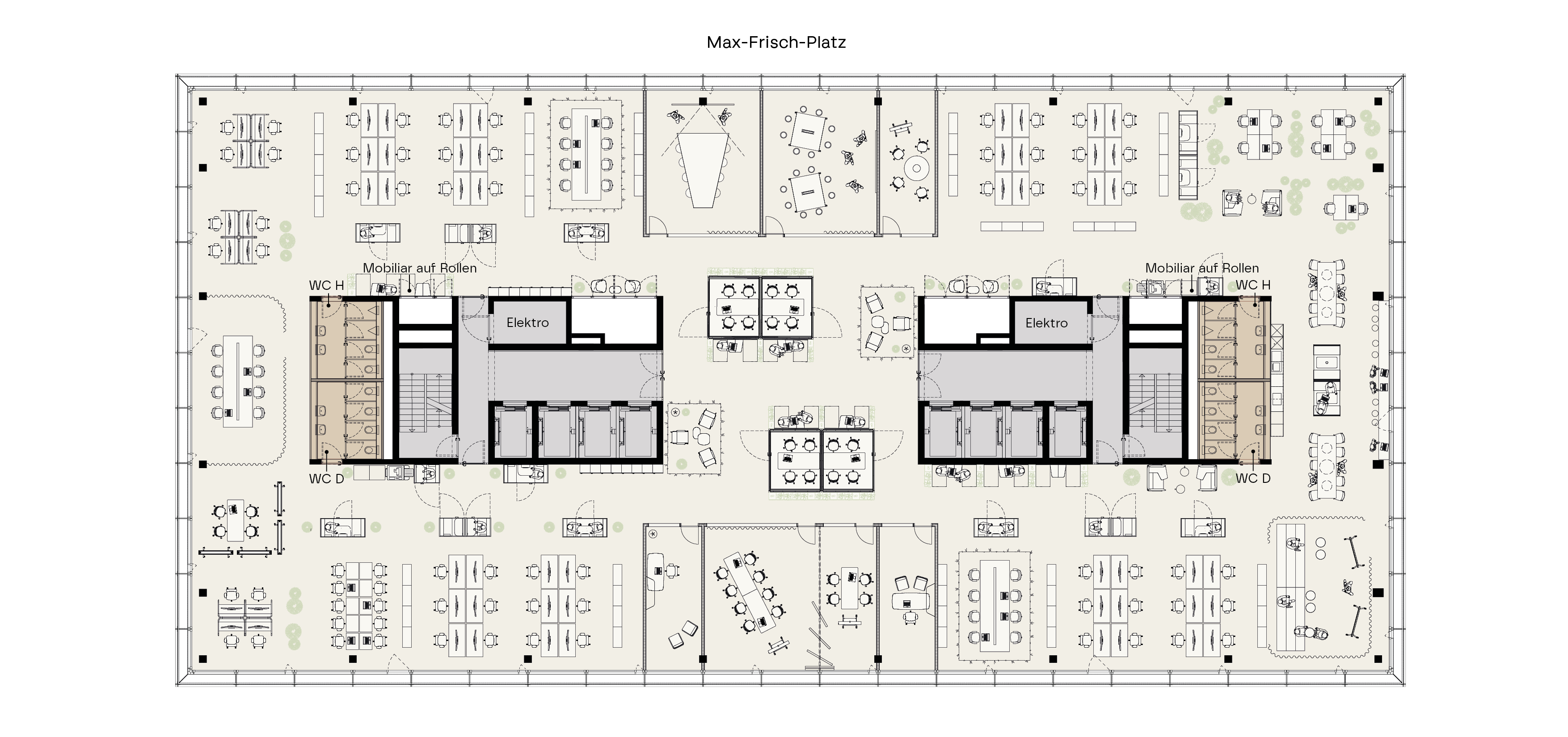
Die effiziente Struktur setzt auf grosszügige Open-Space-Flächen und eine klare Organisation der Arbeitsplätze. Kommunikation und Teamarbeit stehen im Mittelpunkt, ergänzt durch gezielt platzierte Meetingräume für fokussierte Besprechungen. Das Konzept ermöglicht 110 Arbeitsplätze.

Eine Dachterrasse mit atemberaubendem Weitblick ergänzt das Angebot und bietet einen einladenden Outdoor-Bereich. Dieser schafft Raum für Entspannung und fördert kreative Begegnungen.

Back to top